往复泵的工作原理是怎样的(往复泵的工作原理和结构、分类、性能参数、常见故
往复泵的工作原理是怎样的(往复泵的工作原理和结构、分类、性能参数、常见故障及排除原因)
往复泵也是容积式泵的一种,往复泵包括活塞泵和柱塞泵,适用于输送流量较小、压力较高的各种介质。当流量小于100m³/h、排出压力大于10MPa时,有较高的效率和良好的运行性能。油田近年来注聚合物就采用柱塞泵。
一、工作原理和结构
1. 结构
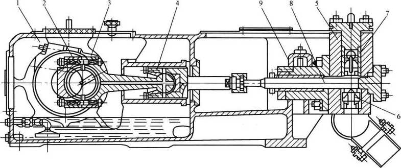
往复泵是通过一定结构的部件将发动机的旋转运动转变为活塞(或柱塞)的往复运动,提高液体能量。电动柱塞泵(图2-6)就是一种往复泵。把往复泵的一些部件按结构关系和作用分为动力端和液力端两大部分,将此两大部分连接成一体,固定在底座上就是一台完整的往复泵。

图2-6 电动柱塞泵1一机座;2—曲轴;3—连杆;4—十字头;5—液缸;6—吸入阀;7—排出阀;8一柱塞;9—填料函
(1)动力端∶动力端将原动机的能量传给液力端。大型泵是在动力端把原动机的动力通过减速机构减速后,传给主齿轮,再传给付齿轮和曲轴的;而小型泵是直接传给曲轴的。动力端包括皮带轮或齿轮、曲轴、曲柄、连杆、十字头、滑板(或滑道)、壳体、轴承等。
(2)液力端∶液力端直接输送液体,把机械能转变为液体的压力能。液力端包括缸套、活塞(或柱塞)、活塞拉杆、吸人阀和阀座、弹簧、排出阀和阀座、弹簧、密封圈、缸体、缸盖等部件。
2.工作原理
图2-7为单作用往复泵工作原理示意图。

图2-7 单作用往复泵工作原理示意图1一吸入阀机座;2—排出阀;3一液缸;4一活塞;5一十字头;6一连杆;7一曲轴;8
曲轴以角速度ω逆时针旋转时,活塞(或柱塞)向右移动,液缸的容积增大,压力降低被输送的液体在压力差的作用下克服吸入阀的阻力损失进入到液缸。当曲柄转过180°以后,活塞(或柱塞)向左移动,液体被挤压,液缸内液体压力急剧增加,在这一压力作用下,吸入阀关闭,而排出阀被打开,液缸内液体在压力差的作用下被排出管路。当往复泵的曲轴以角速度ω不停的旋转时,往复泵就不断地吸入和排出液体,达到输送液体的目的。
二、分类
(1)根据液力端特点分类∶往复泵按工作机构可分为活塞泵、柱塞泵和隔膜泵;按作用特点可分为单作用往复泵、双作用往复泵和差动往复泵;按缸数可分为单缸往复泵、双缸往复泵和多缸往复泵。
(2)根据动力端特点可分为曲柄连杆机构、直轴偏心轮机构等。
(3)根据驱动特点可分为电动往复泵、蒸气往复泵和手动往复泵等。
(4)根据排出压力Pd大小可为以下几种∶
低压泵Pd≤4MPa;
中压泵 4MPa≤Pd<32MPa;
高压泵32MPa≤Pd<100MPa;
超高压泵 Pd≥100MPa。
(5)根据活塞(或柱塞)每分钟往复次数n可分为以下几种∶
低速泵 n≤80r/min;
中速泵 80r/min≤n<250r/min;
高速泵250r/min≤n<550r/min;
超高速泵 n≥550r/min。
三、性能参数
1.流量(Q)
往复泵的流量是指输出的最大流量,即样本名铭牌上标记的流量,也称为额定流量。
计算公式为∶


2.出口压力(Pd)
泵的出口压力是指泵允许的最大出口压力,以此来决定泵体的强度、密封和原动机功率。泵实际操作时的出口压力取决于出口管路的背压,要求应小于泵允许的最大出口压力。出口压力单位为MPa。
3. 功率和效率

四、性能曲线
往复泵的性能曲线(图2-8)包括∶
(1)排出压力(p)-实际流量曲线(p-Q);
(2)排出压力(p)-轴功率曲线(p-N)。

五、瞬时流量和流量不均匀系数
1.往复泵的瞬时流量
在不考虑任何容积损失的前提下,往复泵在每一瞬间排出的流量,称为理论瞬时流量,简称瞬时流量。多缸往复泵的瞬时流量是指所有液缸在同一瞬间排出瞬时流量之和。往复泵的流量曲线如图2-9所示。

从图2-9中可以看出,液缸数越多,合成的瞬时流量Q越均匀,但液缸数太多,往复泵的结构复杂,制造和维修困难。因此,通常只采用双缸双作用、三缸单作用、单缸单作用和单缸双作用泵。
2.流量不均匀系数



3.减少往复系流量脉动的方法
往复泵因流量不均匀会造成排出压力的脉动。当排出压力的变化频率与排出管路的自振频率相等或整数倍时,将会引起共振。同时,会使原动机的负载不均匀,缩短往复泵和管路的使用寿命,也使泵的吸入条件变坏。减少往复泵流量脉动的方法有以下两种∶
(1)选用多缸泵或双作用泵。

六、常见故障的原因与排除方法
往复泵常见故障的原因与排除方法见表2-4。


——————END——————